Напольный люк Самоподъемный Невидимка короб в Твери
Уважаемые покупатели!
В связи с участившимися случаями подделок продукции нашего производства, вынуждены сообщить, что гарантировать качество данного изделия и осуществлять постпродажное (гарантийное) обслуживание мы можем только при наличии данной пометки в номенклатуре люка, в КП, в счетах, в накладных, в счет фактурах, на сайтах-партнерах. Бренд "лючки.рф" является зарегистрированным товарным знаком и защищен законодательно.
Если Вам предлагается идентичная номенклатура, но без приписки "лючки.рф ®" это означает, что продукт изготовлен не на нашем заводе со всеми вытекающими последствиями (провисание, ржавение, несоблюдение диагоналей, несоблюдение зазоров, отсутствие гарантийных обязательств и многое другое). Зачастую такую продукцию реализуют фирмы-однодневки.











Нестандартные (заказные) люки - это люки нестандартных размеров, изготавливаемые под заказ.
Люк может быть изготовлен практически в любом размере, с точностью до +-2 мм.
В таблице размеров нестандартные люки выделены белым или коричневым (если люк двустворчатый) цветами.
Заказные люки запускаются в производство только после предоплаты.
Минимальный размер предоплаты составляет 50% стоимости заказа.
Внести предоплату вы можете следующими способами:
- Наличными или картой в нашем офисе - от 50%
- Безналичным расчетом - 100%
- Онлайн на сайте через защищенное соединение - 100%
Напольный люк Самоподъемный Невидимка, Короб
Можно открыть из комнаты или погреба
Эффект автоматического открывания + Повышенный уровень безопасности
Очень прочная конструкция
Максимально незаметен после облицовки материалом
Повышенная защита от влаги, пыли и шума
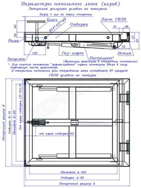
Общие параметры
Доска;
Ламинат;
Паркет;
Линолеум
Погрешность при производстве может составлять +- 2 мм.
Производитель на свое усмотрение и без дополнительных уведомлений может менять комплектацию, внешний вид и технические характеристики модели.
1. Не будет ли задевать край при открытии люка при такой толщине пола
2. Нужен ли доп. амортизатор, или достаточно 2-х штатных на эту массу
Если ГВЛВ не убирать, то максимальную толщину покрытия можно использовать 15 мм. Если убрать ГВЛВ, то на на дверь можно уложить 24 мм.
Амортизатор дополнительно ставить не нужно.
По данному запросу лучше обратиться к нашим специалистам.
Как с нами связаться:
- написать нам на вотсап (https://wa.me/79857746449);
- написать на e-mail: mail@luchki.ru
- позвонить на бесплатную горячую линию 8(800) 775-25-37.
С уважением, команда Лючки.рф.
Услуги замера и монтажа временно не предоставляются
Приносим извинения за возможные неудобства
Стоимость работ по монтажу
| Стоимость работ по монтажу люков | ||||
|---|---|---|---|---|
| Модель | Стоимость работ | Стоимость материала для монтажа | ||
| Напольный | ||||
| Съемный | от 8000 | от 2000 | ||
| На петле | ||||
| Настенный | ||||
| Металлический сантехнический размеры от 200 до 500мм | от 500 | от 200 | ||
| Металлический сантехнический размеры от 500 до 1000мм | от 1000 | от 500 | ||
| Под плитку размеры от 200 до 500 мм | от 2500 | от 500 | ||
| Под плитку размеры от 500 до 1000 мм | от 3500 | от 1000 | ||
| Под покраску размеры от 200 до 500 мм | от 2500 | от 500 | ||
| Под покраску размеры от 500 до 1000 мм | от 3500 | от 1000 | ||
| Потолочный | ||||
| Под покраску от 200 до 500 мм | от 2500 | от 500 | ||
| Под покраску от 500 до 1000 мм | от 3000 | от 1000 | ||
| Стоимость работ по установке чердачных лестниц | ||||
| Тип работ | Стоимость работ | |||
| Деревянные чердачные лестницы, установка в готовый проем | 5000 ₽ | |||
| Металлические чердачные лестницы, установка в готовый проем | 7500 ₽ | |||
| Подготовка проема под установку лестнице (в зависимости от сложности работ, кроме бетонных проемов) | от 2000 до 5000 ₽ | |||
| Подготовка проема в бетонном перекрытии | от 5000 | |||
| Стоимость услуг по установке окон-люков | ||||
| Тип работ | Стоимость работ | |||
| Установка окон-люков в готовый проем без подведения кровельного покрытия | 5000 ₽ | |||
| Установка окон-люков в готовый проем без подведения кровельного покрытия с переносом стропильной системы | 8000 ₽ | |||
| Установка окон-люков в готовый кровельный пирог (Битумная, натуральная, металлочерепица) | 10000 ₽ | |||
| Установка окон-люков в готовый кровельный пирог с переносом стропильной системы (Битумная, натуральная, металлочерепица) | 13000 ₽ | |||
| Установка окон-люков в фальцевую кровлю (Клик фальц, двойной стоящий фальц, оцинковка и т.п.) | от 18000 ₽ | |||
В стоимость работ не входит:
- Укладка плитки;
- Шпатлевка;
- Подготовка проема;
- Укрепление проема;
- Утепление люка.
ВНИМАНИЕ! Дополнение по установке и замеру чердачных лестниц: Выезд на замер осуществляется платно, до первого малого бетонного кольца 1 500 ₽, от малого и далее по Московской области 2 000 ₽.
* Стоимость монтажа и установочных работ может отличаться от прайса. Подробную информацию уточняйте у менеджеров магазина.
* Расходный материал при установке чердачных лестниц в стоимость монтажа не входит и расчитывается индивидуально.











+7 (977) 090-10-90 






















































































































































































